Click Report on the Main menu to open the Report form. Each report you select has its own parameters. Click in the field to see status bar text or hover over a control to see what it does.

Click View to see the report on your screen. Click Print to send it to the default printer or Export to save it to CSV, DBF (dBase, FoxPro, Clipper), HTM (for web browsers), MDB or SNP (Access), RTF (Word or WordPad), TXT or XLS (Excel). Click PDF to quickly send the report to the import folder as a PDF without any prompts.

Click ImportFolder or Alt-I to see the files in the import folder that you specified on the Setup form.

Reports, like forms show the name in the upper left corner. Reports normally show the page number, date the report was created and the name of the app that created the report in small font. It is easy to add a line showing the parameters that were chosen for the report.

Here are some of the reports in this database:

Corrections Followup Report

Corrective Modifications No Violations Report

Corrective Mods Violations Pending Report

Inspection Complete No Violations Report

Inspection Complete Violations Pending Report

Inspection Fee Report

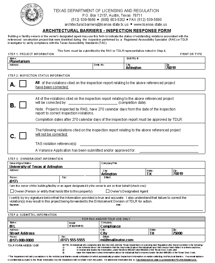
Inspection Response Report

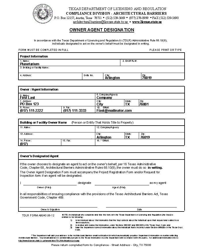
Owner Agent Designation Report

Plan Review Completed Report

Plan Review Completed Fee Due Report

Plan Review Completed Paid Report

Project Contacts Report

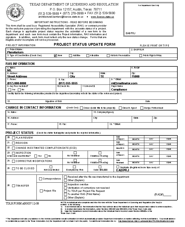
Project Status Report

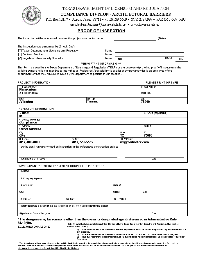
Proof Of Inspection Report

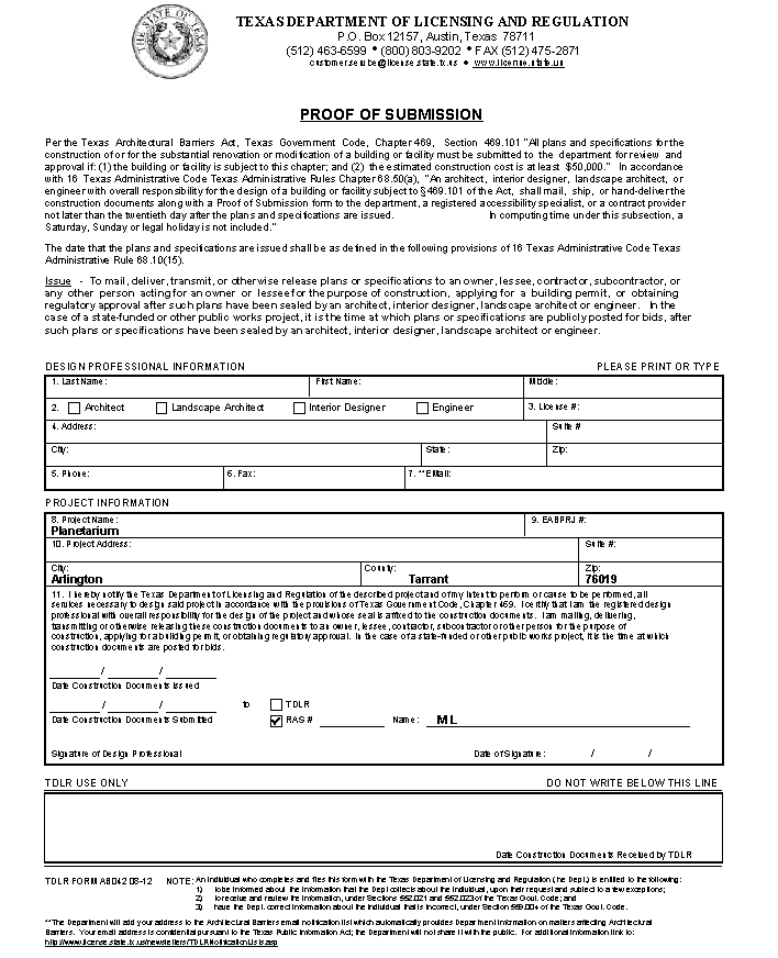
Proof Of Submission Report

Record Of Transmittal Report

Request For Inspection Report

Revisions Review Completed Report

Close